0
  • Acheter De l'ancien
  • Louer
Dans un rayon de
Budget
Mini
Maxi

    Faites estimer votre bien par un professionnel

    Estimer votre bien

    Immeuble composé de 5 logements avec dépendances et garages

    Charolles (71120)
    Réf : 439

    SUD BOURGOGNE, à 1h20 de Lyon, à 2h de Genève, à proximité de Paray-le-Monial, sur la commune de Charolles, en plein centre-ville, venez découvrir cet immeuble de rapport d’environ 400 m², composé de 5 logements avec dépendances et garages, édifié sur une parcelle de 690 m².

    Idéal pour un investissement locatif, cet ensemble immobilier propose une belle diversité de typologies et bénéficie d’un environnement pratique avec commerces, écoles et gare accessibles rapidement. Il se situe également à 40 minutes des gares TGV de Mâcon-Loché et du Le Creusot, permettant de rejoindre Paris en 1h30.

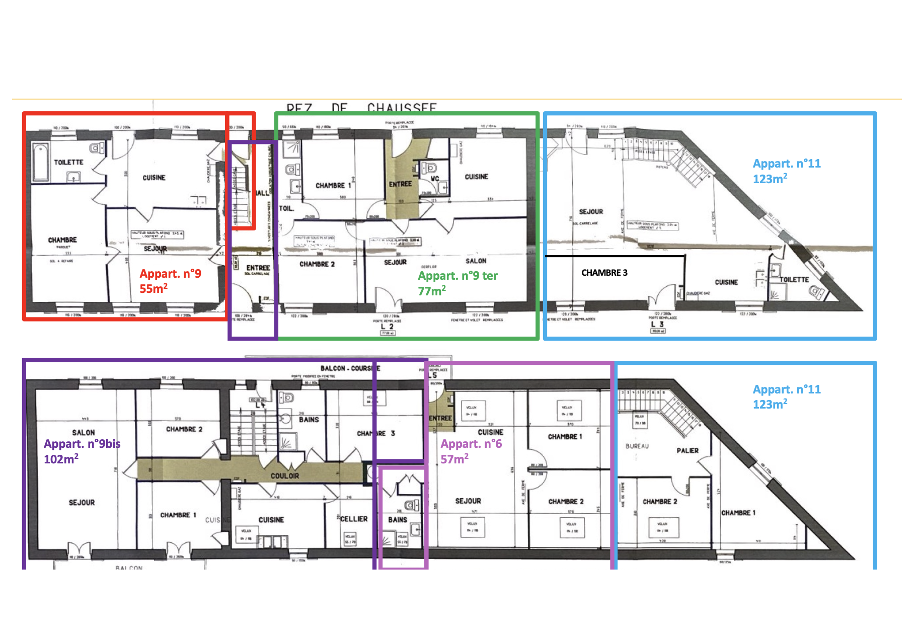
    L’immeuble se compose de cinq appartements =

    - Un premier T2 de 60 m², entièrement rénové en 2022, dispose d’une cour privative, d’un garage, du double vitrage ainsi que d’un chauffage et d’une production d’eau chaude au gaz. Il comprend une pièce de vie, une chambre, une salle d’eau avec toilettes et une cave (DPE F).

    - Un second appartement de type T4 d’environ 105 m², situé à l’étage, offre de beaux volumes avec une cuisine, un cellier, un grand salon et trois chambres. Il dispose également d’une salle d’eau avec toilettes et d’un garage. Le chauffage et l’eau chaude sont assurés par le gaz (DPE D).

    - Un troisième logement, un T4 en duplex d’environ 110 m², se distingue par sa grande pièce de vie avec insert bois, son chauffage au gaz et sa configuration familiale comprenant une chambre au rez-de-chaussée et deux à l’étage. Il bénéficie d’une salle d’eau avec toilettes, d’un garage attenant et a fait l’objet de travaux en 2021 (DPE C).

    - Un quatrième appartement, un T3 d’environ 55 m², entièrement rénové en 2016, comprend une pièce de vie avec cuisine, deux chambres, une salle d’eau avec toilettes et un chauffage entièrement électrique, tout comme la production d’eau chaude. Il dispose également d’un bûcher (DPE E).

    - Un cinquième T3 de 77 m² complète l’ensemble. Il comprend une cave, un bûcher, une salle d’eau avec toilettes, et bénéficie d’un chauffage ainsi que d’une production d’eau chaude au gaz. Des travaux de rafraîchissement ont été réalisés en 2017 et la chaudière a été remplacée en 2024.

    L’ensemble immobilier est édifié sur une parcelle comprenant plusieurs dépendances, dont une grande dépendance d’environ 100 m² actuellement utilisée en garages, ainsi que 3 à 4 garages, deux caves, une remise et des espaces extérieurs avec cour commune et cour indépendante.

    L’immeuble est entièrement raccordé au tout-à-l’égout, la toiture est entretenue et suivie, et chaque logement dispose de sa propre salle d’eau avec toilettes. Les modes de chauffage sont variés (gaz, électrique et bois), offrant une certaine flexibilité de gestion.

    Contactez Christelle MOSNIER au 0673531695

    découvrir le bien
    Prix du bien 330 000 €

    Caractéristiques du bien

    Caractéristiques Valeurs
    Code postal 71120
    Surface habitable (m²) 400 m²
    Surface loi Carrez (m²) 400 m²
    Mode de chauffage Gaz de ville
    Type de chauffage TRAD_TYPE_CHAUFF_CHAUDIERE
    Format de chauffage Individuel
    Balcon OUI
    Terrasse OUI
    Cave OUI
    Nombre de parking 4
    Exposition Sud-Ouest
    Année de construction 1850

    Infos financières

    Caractéristiques Valeurs
    Prix de vente 330 000 €
    Les honoraires d'agence seront intégralement à la charge du vendeur  
    Taxe foncière annuelle 3 316 €

    Bilans énergétiques

    DPE GES
    Ce bien vous intéresse ?
    Fieldset par défaut
    Fieldset par défaut
    Validation

    * Champs obligatoires

    Contacter l'agence
    Validation
    Les informations recueillies sur ce formulaire sont enregistrées dans un fichier informatisé par La Boite Immo agissant comme Sous-traitant du traitement pour la gestion de la clientèle/prospects de l'Agence / du Réseau qui reste Responsable du Traitement de vos Données personnelles. La base légale du traitement repose sur l'intérêt légitime de l'Agence / du Réseau. Elles sont conservées jusqu'à demande de suppression et sont destinées à l'Agence / au Réseau. Conformément à la loi « informatique et libertés », vous disposez des droits d’accès, de rectification, d’effacement, d’opposition, de limitation et de portabilité de vos données. Vous pouvez retirer votre consentement à tout moment en contactant directement l’Agence / Le Réseau. Consultez le site https://cnil.fr/fr pour plus d’informations sur vos droits. Si vous estimez, après avoir contacté l'Agence / le Réseau, que vos droits « Informatique et Libertés » ne sont pas respectés, vous pouvez adresser une réclamation à la CNIL. Nous vous informons de l’existence de la liste d'opposition au démarchage téléphonique « Bloctel », sur laquelle vous pouvez vous inscrire ici : https://www.bloctel.gouv.fr Dans le cadre de la protection des Données personnelles, nous vous invitons à ne pas inscrire de Données sensibles dans le champ de saisie libre.
    Ce site est protégé par reCAPTCHA, les Politiques de Confidentialité et les Conditions d'Utilisation de Google s'appliquent.